Please enable javascript in your browser

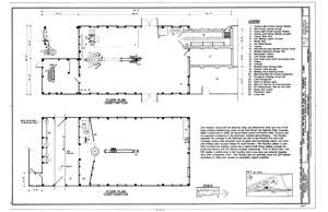
Floor Plans of Foundry

First and Second Floor Plans of Foundry

Quality - ★★★★★

$9.00

Add to Cart: